1 inmueble disponible en Promoción de edificio en venta para invertir en C. Padre Perez Goyena, 30
Desde 2.225.000 €
Ref. 06076918
Promoción de edificio en venta para invertir en C. Padre Perez Goyena, 30 en la provincia de Navarra
Huarte,
 Navarra
Condiciones de comercialización
Inmuebles disponibles en esta promoción
Notas
Añade una nota a este inmueble...
Nota actualizada el a las
Descripción
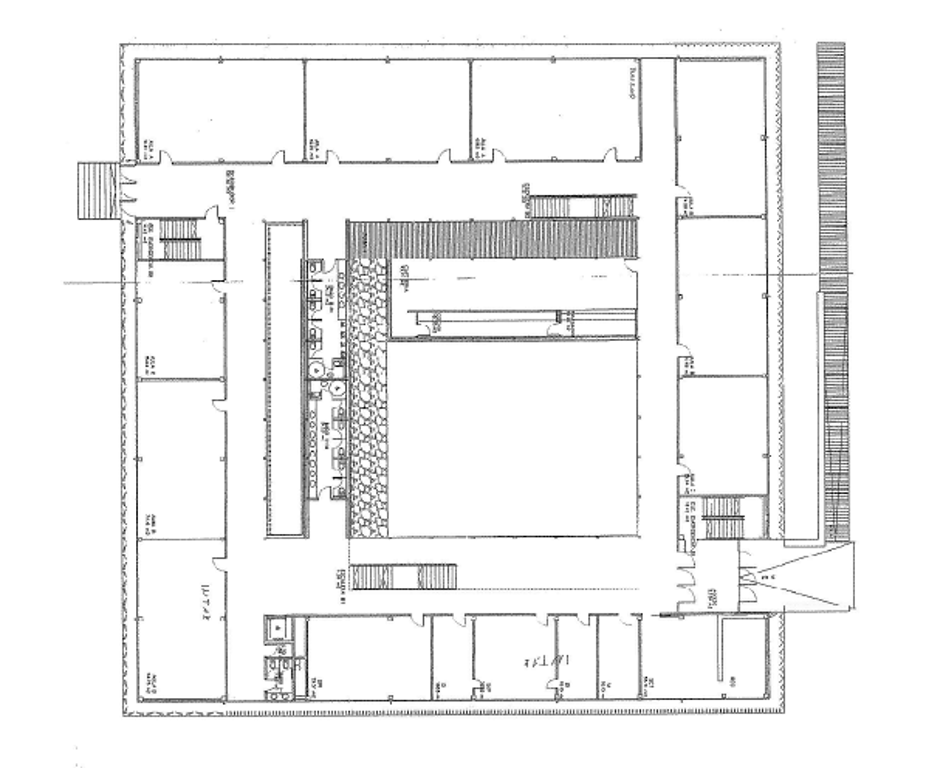
Edificio de forma cuadrada de uso dotacional ubicado entre el cauce del rio Arga.
Dicho edificio fue promovido por el Foro Europeo de Desarrollo empresarial y ha impartido clases de postgrado y masters en el mismo hasta 2017.
Consta Planta semisótano, Planta baja y planta primera con diferentes despachos y aulas, biblioteca e instalaciones.
Se trata de un edificio de calidad alta, con materiales de gama alta.
Actualmente, el edificio está muy vandalizado, con los vidrios fijos del patito reventados, el mobiliario roto y grafitis sobre varias particiones interiores.
A nivel urbanístico, el edificio está ubicado en la parcela D8 del estudio de detalle del Plan Parcial de Ugarrandia. Existe proyecto de reparcelación y urbanización aprobado en 2003.
Jornada de puertas abiertas
Fecha
Día: Jueves, 26 de Febrero
Hora: 11h
Lugar
C. Padre Perez Goyena, 30
HUARTE (Navarra)
Descargas
Municipio: huarte
Provincia: Navarra
N.º de habitantes: 6.895
Superficie: 3,83 km2
Huarte / Uharte es una villa y municipio de la Comunidad Foral de Navarra, situado en la Cuenca de Pamplona, en el partido judicial de Aoiz y a 6.7 km de la capital de la comunidad, Pamplona, formando parte del área metropolitana de la misma. Huarte se sitúa en la parte noroeste de la Cuenca de Pamplona la que a su vez se encuentra en el centro de la Comunidad Foral de Navarra. Su término municipal tiene una superficie de 3.7 km² y limita al norte con Esteríbar y Ezcabarte, al este y al sur con Valle de Egüés, y al oeste con Villava y Burlada.
- Habitantes: 6.895
- Número de hogares: 3.047
- Edad media de las personas: 35 años
- % extranjeros: 1%
- Nivel medio de estudios: Secundaria
- % dedicadas a segunda residencia: 2%
- Nº de hoteles por cada 1.000 habitantes residentes: 0,3
- Número de farmacias: 7
- Número de escuelas de primaria: 3
- Número de estaciones ferrocarril: 1
Promoción de edificio en venta para invertir en C. Padre Perez Goyena, 30 en la provincia de Navarra
Desde 2.225.000 €
Ref. 06076918
Solicitud enviada, gracias por contactarnos
Recibirás un email con los datos de contacto de tu asesor. Asegúrate de revisar las bandejas de SPAM de tu correo electrónico.
Nos gustaría conocer tus preferencias de inversión.
Inmueble de promoción conjunta
Cuidado, estás dejando tu petición de información en una promoción formada por más de un activo, revisa la ficha de este producto antes de solicitar información.
Inmueble tipología Obra Parada y en promoción conjunta
Importante: estás dejando tu petición de información sobre una estructura pendiente de finalizar que se comercializa completa y destinada a perfil inversor / promotor. Es una promoción formada por más de un activo, revisa la ficha de este producto antes de solicitar información.
Inmueble tipología Obra Parada
Importante: estás dejando tu petición de información sobre una estructura pendiente de finalizar que se comercializa completa y destinada a perfil inversor / promotor.
Vivienda sin posesión
No hay posibilidad de visitar este inmueble ni de financiarlo.
¿Confirmas que estás interesado en esta tipología de activos destinados a público inversor?
Inmueble proindiviso
Importante: este activo es un proindiviso, cuya propiedad corresponde a varias personas, cada una de las cuales ostentará únicamente un porcentaje determinado sobre la propiedad del inmueble.
¿Confirmas que estás interesado en esta tipología de activos?
¡Gracias por contactar!
Recibirás un email con los datos de contacto de tu asesor para que puedas agendar una visita al inmueble.
Por favor, si no te llega, revisa las bandejas de SPAM y promociones de tu correo.
Propietario del inmueble
Actualizado el 30/05/2024
Términos y condiciones
La información contenida en esta página web está sujeta a actualizaciones sin previo aviso, por lo cual se debe conformar en cada caso a través del 942 049 000. Los precios no incluyen impuestos y gastos a cargo del comprador. Los productos anunciados pueden estar en trámite de inscripción en el Registro de la Propiedad.
Toda la información referida en el R.D. 515/1989, de 21 de abril, sobre protección de los consumidores en cuanto a la información a suministrar en la compraventa y arrendamiento de viviendas, la normativa autonómica complementaria, el R.D. 390/2021, de 1 junio, sobre certificación energética de los edificios, y la demás legislación aplicable se encuentra a disposición de los usuarios en nuestras oficinas en Avenida de Burgos 12, 28036 Madrid. Todos los productos anunciados en esta web los comercializa Servihabitat.
Datos del propietario y comercializador
Inmueble propiedad de Coral Homes, S.L., sociedad con domicilio social en Avda. de Burgos 12, 28036 Madrid y CIF número B88178694, inscrita en el Registro Mercantil de Madrid al tomo 38172, folio 50, hoja M-679225.
Comercializador: Servihabitat Servicios Inmobiliarios, S.L.U., con domicilio en la Avenida de Burgos, 12, 28036 Madrid, inscrita en el Registro Mercantil de Madrid, Tomo 37153, Folio 143, Hoja M-663089.
Condiciones promocionales
DESTINATARIOS DE LA COMERCIALIZACIÓN DEL INMUEBLE Y TRIBUTACIÓN DE LA COMPRAVENTA EN CASO DE ACEPTACIÓN DE LA OFERTA: El ofertante declara conocer que la comercialización y venta del inmueble objeto de la presente Oferta está condicionada a que la tributación de la transmisión del objeto de ésta quede, bajo cualquier circunstancia, sujeta y no exenta de IVA / IGIC. Como consecuencia de lo anterior, el Ofertante realiza y asume las declaraciones y compromisos siguientes: I. En el caso de segundas entregas de edificaciones y terrenos no edificables (exceptuando los que se encuentran en curso de urbanización), el Ofertante declara que es empresario profesional y que, en relación con la adquisición del inmueble, cumple los requisitos legales para acogerse a la renuncia a la exención del IVA / IGIC prevista en la normativa vigente. La venta de terrenos que tengan la condición de edificables (solar o cualquier otro terreno con licencia administrativa para edificar) así como la venta de terrenos en curso de urbanización cuya ejecución material se halle iniciada, quedará inexorablemente sujeta a IVA/IGIC, con independencia de la condición del adquirente. II. Que, para el caso de que la presente Oferta resulte aceptada (de conformidad con lo establecido en el apartado ""Aceptación de la oferta por Servihabitat Servicios Inmobiliarios S.L.U. y sus efectos""), si se tratase de una segunda transmisión el Ofertante se compromete y obliga a aceptar la renuncia a la exención del IVA / IGIC en el momento de otorgar escritura de compraventa. Como consecuencia de lo anterior, el Ofertante declara conocer y aceptar que la compraventa del inmueble quedará sujeta y no exenta de IVA / IGIC. III. Que en caso de que el Ofertante incumpla por cualquier circunstancia el compromiso manifestado en los apartados anteriores, el Propietario tendrá derecho a resolver la presente Oferta haciendo suya la cantidad entrega por el Ofertante en virtud de la Oferta o de las arras en caso de haberse suscrito las mismas de conformidad con lo establecido en el apartado ""Aceptación de la oferta por Servihabitat Servicios Inmobiliarios S.L.U. y sus efectos"" del presente documento. IV. El Ofertante declara conocer y aceptar que las manifestaciones y compromisos estipulados en los apartados (i) a (iii) constituyen una condición esencial para la aceptación de la presente Oferta.
Tu cuenta
Entra con tu email y contraseña para tener acceso directo a tu cuenta:
Tu cuenta
Identifícate con tu email y contraseña para tener acceso directo a:
Tu perfil
Tus favoritos
Tus búsquedas guardadas
Subastas exclusivas
¿Eres usuario particular? Accede como particular
Tu cuenta
Identifícate y aprovecha todas las ventajas de guardar tu inmuebles favoritos
Descarga la lista de favoritos en PDF
Añade notas y comentarios a tus inmuebles favoritos
Guarda búsquedas y entérate de oportunidades en la zona
¿Eres usuario particular? Accede como particular
Tu cuenta
Entra en tu cuenta y aprovecha todas las ventajas de guardar tus inmuebles favoritos.
Marca tus inmuebles favoritos
Te informaremos si bajan de precio
Añade notas y comentarios
Te avisaremos si se dan de baja
Tu cuenta
Identifícate y aprovecha todas las ventajas de guardar tus alertas de búsqueda:
Recibe alertas de nuevos inmuebles
Guarda favoritos y descarga la lista en PDF
Tu perfil con los inmuebles que te han interesado
¿Eres usuario particular? Accede como particular
Tu cuenta
Para disfrutar del Dosier Comercial regístrate en Servihabitat. Además, desde tu cuenta podrás gestionar:
Tu perfil
Tus favoritos
Tus búsquedas guardadas
Subastas exclusivas
¿Eres usuario particular? Accede como particular
Tu cuenta
¿Eres usuario particular? Accede como particular
Sobre tu privacidad
Utilizamos cookies propias y de terceros para fines analíticos y mejorar la funcionalidad de nuestra web y/o mostrarle contenidos personalizados en base al perfil que hemos elaborado en función de sus hábitos de navegación. Al pulsar en “Aceptar todas” se entiende que ha sido informado y acepta la instalación y uso de todas las cookies seleccionadas. Puede pulsar “Configurar Cookies” para configurar o rechazar las cookies. Para más información o deshabilitar las cookies en cualquier momento visite nuestra Política de cookies.
Configura las cookies
¿Qué son las cookies?
Cualquier sitio web que visites puede almacenar o recuperar información en tu navegador, principalmente a través de las cookies. Esta información puede ser sobre ti, tus preferencias o tu dispositivo y se utiliza pricipalmente para hacer que el sitio funcione como esperas que lo haga. La información no suele identificarte directamente, pero sí puede ofrecerte una experiencia web más personalizada. Respetamos tu derecho a la intimidad, de modo que puedes negarte a admitir determinados tipos de cookies. Haz clic en los diferentes títulos de las categorías para obtener más información y cambiar nuestra configuarción predeterminada. Sin embargo, bloquear algunos tipos de cookies puede afectar a tu experiencia con el sitio y los servicios que te podemos ofrecer.
Optando por "Guardar selección" sin haber seleccionado ninguna cookie, quedarán rechazadas cookies distintas a las necesarias.
Cookies técnicas
Estas cookies permiten las funciones básicas y son necesarias para el correcto uso de la página web, en tanto que permite navegación en la página y utilizar las diferentes opciones o servicios que tiene. Con ellas podemos, por ejemplo, identificarte durante la sesión, darte acceso a partes de acceso restringido, y utilizar elementos de seguridad durante tu navegación.
Cookies de preferencias
Estas cookies permiten la experiencia del usuario y almacenar sus preferencias. Por ejemplo, son aquellas cookies que guardan tus preferencias de búsqueda del sitio.
Cookies de medición
Estas cookies permiten contar las visitas y las fuentes de tráfico para poder medir y mejorar el rendimiento de la página web. Usamos estas cookies a fin de mejorar el servicio ofrecido a los usuarios. Toda la información recogida por estas cookies es agregada y, por lo tanto, anónima.
Cookies de publicidad
Estas cookies de nuestros socios publicitarios se utilizan para poder ofrecerle publicidad que pueda ser de su interés, para poder recibir mensajes personalizados y compartir sus datos con las herramientas publicitarias de Google. En caso de no haber aceptado estas cookies, los anuncios seguirán mostrándose, pero dejarán de estar personalizados.